進口電動防爆襯氟球閥
德***萊克閥門中***總代理-germany lik valves international
產品介紹
角行程電動執行機構和O型襯氟球閥閥體組件兩大部分組成。閥體內腔及球芯均采用高壓注塑工藝襯有耐腐蝕、耐老化的聚全氟乙丙烯(F46),故具有可靠的耐腐蝕性和密封性。電動O型襯氟調節球閥主要適用于化工、醫藥、食品、造紙、水處理等行業生產過程強腐蝕性介質的調節或切斷。
產品特點
1、進口電動防爆襯氟球閥適用做調節流量的閥,具有精確的流量特性。
2、進口電動防爆襯氟球閥適用帶有固體物質的苛刻介質(PTFE密封不適用)。
3、進口電動防爆襯氟球閥中軸密封是活動的壓塊,方便密封的檢修。
4、進口電動防爆襯氟球閥連接端無外漏結構設計。
|
外殼
|
防水 別 IP67,NEMA4 and 6
|
|
電機電源
|
110/220V AC 1PH,380/440V AC 3PH, 50/60Hz, ±10%
|
|
控制電源
|
110/220V AC 1PH,50/60 Hz, ±10%
|
|
電機
|
鼠籠式異步電動機
|
|
限位開關
|
2 X 開/關, SPDT,250V AC 10A
|
|
輔助限位開關
|
2 X 開/關, SPDT,250V AC 10A
|
除CHQ-010
|
|
扭距開關
|
開/關 ,SPDT,250V AC 10A
|
除CHQ-010
|
|
行程
|
90°±10°
|
0°~110°
|
|
失速保護/操作溫度
|
內置熱保護,開150℃ ±5℃ /關 97℃ ±15℃
|
|
指示器
|
連續的位置指示
|
|
手動操作
|
機械離合機構
|
|
自鎖裝置
|
蝸輪,蝸桿機構提供自鎖
|
|
機械限位
|
2個外部調整螺栓
|
|
干燥器
|
7-10W (110/220V AC)防冷凝
|
|
接線孔
|
2個PF 3/4”
|
|
環境溫度
|
-20℃--+70℃
|
|
潤滑
|
鋁基潤滑脂(EP 型)
|
|
材料
|
鋼,鋁合金,鋁青銅,聚碳酸脂
|
|
環境溫度
|
大90% RH
|
非凝結
|
|
抗震性能
|
X Y Z 10g,0.2~34 Hz,30分鐘
|
|
外涂層
|
干粉,環氧聚酯
|
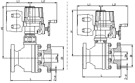
安裝尺寸

|
通徑DN
|
L
|
L1
|
L2
|
H
|
H1
|
D1
|
Z-d
|
備注
|
|
15
|
130
|
215
|
190
|
348
|
303
|
65
|
4-14
|
CHQ05
|
|
20
|
130
|
215
|
190
|
348
|
308
|
75
|
4-14
|
CHQ05
|
|
25
|
140
|
215
|
190
|
351
|
319
|
85
|
4-14
|
CHQ05
|
|
32
|
165
|
215
|
190
|
358
|
325
|
100
|
4-18
|
CHQ08
|
|
40
|
165
|
215
|
190
|
368
|
330
|
110
|
4-18
|
CHQ08
|
|
50
|
203
|
215
|
190
|
373
|
338
|
125
|
4-18
|
CHQ10
|
|
65
|
222
|
215
|
190
|
394
|
359
|
145
|
4-18
8-18
|
CHQ15
|
|
80
|
241
|
263
|
221
|
437
|
391
|
160
|
8-18
|
CHQ20
|
|
100
|
280
|
263
|
221
|
387
|
413
|
180
|
8-18
8-22
|
CHQ30
|
|
125
|
321
325
|
263
|
221
|
501
|
-
|
210
|
8-18
8-26
|
CHQ40/CHQ50
|
|
150
|
350
403
|
263
|
221
|
540
|
-
|
240
|
8-22
8-26
|
CHQ50/CHQ60
|
|
200
|
400
502
|
263
|
221
|
610
|
-
|
295
|
12-22
12-26
|
CHQ80
|