適用范圍:
攪拌機在下列條件下應能正常連續運行:
1 高介質溫度不超過40°C;
2 介質的PH 值在5~9 間;
3 液體密度不超過1150kg/m3;
4 長期潛水運行,潛水深度 般不超過20m。
重點注意事項:
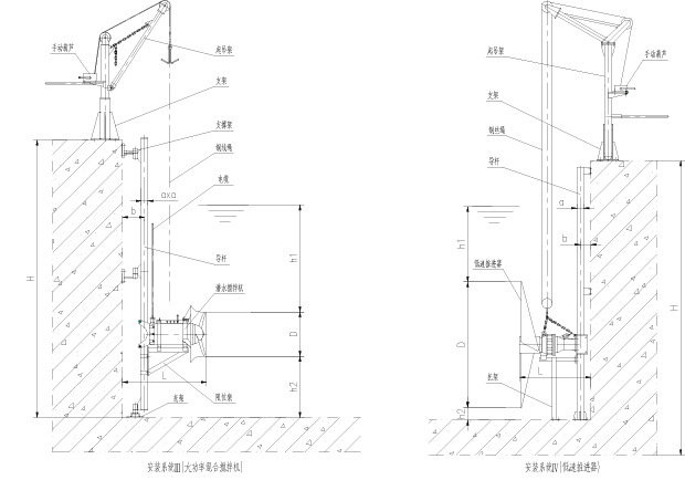
潛水攪拌機必需完全潛入水中工作;不能在易燃易爆或有強腐蝕性液體的環境中工作;鋼膨脹螺栓須按要求固定,安裝完畢后,必須將電纜拉緊固定好.
潛水推流器選型時,漿葉直徑超過2M,建議使用齒輪箱減速機.

性能特點:
1 結構緊湊、操作維修簡單、安裝檢修方便、使用壽命長;
2 葉輪具有 佳的水力設計結構,工作效率高,后掠式葉片具有自潔功能,可防雜物纏繞、堵塞;
3 與曝氣系統混合使用可使能耗大幅度降低,充氧量明顯提高,有效防止沉淀;
4 電機繞組 緣等 F ,防護等 為IP68,選用優質軸承和電機防凝露裝置,使電機的工作更安全;
5 兩道機械密封;



性能參數:
攪拌機在額定電壓380V,頻率為50Hz,繞組 緣等 F ,防護等 IP68,工作制式Ⅰ條件下。



選型注意事項:
潛水攪拌機的選型是 項比較復雜的工作,選型的正確與否直接影響設備的正常使用,作為選型的原則就是要讓攪拌機在適合的容積里發揮充分的攪拌功能, 般可用流速來確定。根據污水處理廠不同的工藝要求,攪拌機 佳流速應保證在0.15~0.3m/s 之間,如果低于0.15m/s 的流速則達不到推流攪拌效果,超過0.3m/s 的流速則會影響工藝效果且造成浪費。所以在選型前 確定潛水攪拌機運用的場所,如:污水池、污泥池、生化池;其次是介質的參數,如:懸浮物含量、粘度、溫度、PH 值;還有水池的形狀、水深等。攪拌機所需的配套功率是按容積大小、攪拌液體的密度和攪拌深度而確定的,根據具體情況采用 臺或多臺攪拌機。
混合攪拌型
1 根據圖B1 或表B1 確定待攪拌介質的污泥校正系數。
2 根據圖B2 或表B2 確定攪拌池的池型校正系數。
3 按每立方米清水所需耗功5 w,乘以污泥校正系數,再乘以池型校正系數,得出每立方米待混合攪
拌介質所需耗功的實際值,再乘以待攪拌介質的體積,得出整池待混合攪拌介質所需的功率。
低速推流型
1 根據圖B1 或表B1 確定攪拌池的池型校正系數。
2 根據圖B2 或表B2 確定待攪拌介質的污泥校正系數。
3 根據攪拌介質初始流速y,通過圖B3 確定單位流量的耗功。
4 用攪拌介質初始流速y 乘以葉輪旋轉時所形成的截面積計算出攪拌機的流量。
5 用攪拌機的流量乘以單位流量的功耗,再乘以污泥校正系數和池型校正系數,即可得出整池介質所
需的功率。





