進口電子式電動三通調節閥
德***萊克閥門中***總代理-germany lik valves international
產品介紹
調節閥又名控制閥是過程控制系統中用動力操作去改變介質流量、壓力、溫度、液位等工藝參數的 終控制元件。調節閥由執行機構和閥體部件組成,產品類型很多,結構多種多樣,而且還在不斷地更新和變化。 般來說,閥體是通用的,即可以和氣動執行器匹配,也可以與電動執行機構或其它執行機構匹配使用。
調節閥可分為直行程和角行程;按其所配執行機構使用的動力,按其功能和特性分為線性特性,等百分比特性及拋物線特性三種。調節閥適用于空氣、水、蒸汽、各種腐蝕性介質、泥漿、油品等介質。
產品詳情
德***萊克LIK品牌-進口電子式電動雙座調節閥是由3610L型電子式電動執行機構和雙座調節機構組成。電動執行機構內有伺服系統,無須另配伺服放大器,有輸入訊號及電源即可控制運轉,連線簡單,調節機構具有不平衡很小,允許壓差,大流通能力大等特點,適用于泄漏量要求不嚴格的場合。
電子式電動雙座調節閥主要技術參數和性能指標
進口電子式電動三通調節閥機構主要技術參數
|
公稱通徑mm
|
25
|
32
|
40
|
50
|
65
|
80
|
100
|
125
|
150
|
200
|
250
|
300
|
|
額定流量系數kv
|
10
|
16
|
25
|
40
|
63
|
100
|
160
|
250
|
400
|
630
|
100
|
1600
|
|
公稱壓力(MPa)
|
1.6 4.0 6.4(常溫),4.0 6.4(中溫),0.6 4.0 6.4(低溫)
|
|
行程(mm)
|
16
|
25
|
40
|
60
|
100
|
|
動作速度mm/s
|
2.1
|
3.5
|
1.7
|
3.4
|
2.0
|
|
配用電動執行機構型號
|
361LSA-20
361LXA-20
|
361LSB-30
361LXB-30
|
361LSB-50
361LXB-50
|
361LSC-65
|
361LSC-99
|
|
流量特性
|
直線,等百分比
|
|
介質溫度℃
|
-20℃~+200、-40~+250(常溫) -40~+450(中溫) -250~-60(低溫)
|
|
法蘭尺寸
|
鑄鐵法蘭按JB78-59,鑄鋼法蘭按JB79-59
|
|
法蘭型式
|
法蘭密封型式按JB77-59,鑄鐵法蘭按光滑式,鑄鋼法蘭按凹式,低溫按準糟式
|
|
閥
體
材
質
|
公
稱
壓
力
(MPa)
|
0.6
|
低溫:-250℃~-60℃ ZG1r18Ni9Ti
|
|
1.6
|
常溫:-20℃~+200℃ Ht200
|
|
4.0
|
常溫:-40℃~+200℃ ZG230-450、ZG1Cr18Ni9Ti
|
|
中溫:-40℃~-450℃ ZG230-450、ZG1Cr18Ni9Ti
|
|
低溫:-250℃~-60℃ ZG1Cr18Ni9Ti
|
|
6.4
|
常溫:-40℃~+200℃ ZG230-450、ZG1Cr18Ni9Ti
|
|
中溫:-40℃~-450℃ ZG230-450、ZG1Cr18Ni9Ti
|
|
低溫:-250℃~-60℃ ZG1Cr18Ni9Ti
|
進口電子式電動三通調節閥執行機構主要技術參數
|
型號
|
額定輸出力N
|
速度mm/s
|
技術參數
|
|
361LSA-20
361LXA-20
|
2000
2000
|
2.1
2.1
|
電源:AC220V 50Hz
輸入信號:DC4-20mA
DC1-5V
(信號線用屏蔽線)
輸出開度信號:DC4~20mA
上蓋防護等 :相當IP55
隔爆標志:ExdⅡBT 4
|
|
361LSA-30
361LXA-30
|
3000
3000
|
3.5
3.5
|
|
361LSB-50
361LXB-50
|
5000
5000
|
1.7
1.7
|
|
361LSC-65
|
6500
|
2.8
|
|
361LSC-99
|
10000
|
2.0
|
進口電子式電動三通調節閥性能指標
|
項目
|
指標值
|
|
基本誤差%
|
±2.5
|
|
回差%
|
2.5
|
|
死區%
|
1.0
|
|
始終點偏差%
|
電開
|
始點
|
±2.5
|
|
終點
|
±2.5
|
|
電關
|
始點
|
±2.5
|
|
終點
|
±2.5
|
|
額定行程偏差%
|
2.5
|
|
允許泄量L/h
|
10 -3 ×閥額定容量
|
進口電子式電動三通調節閥允許壓差
|
公稱通徑
|
25
|
32
|
40
|
50
|
66
|
80
|
100
|
125
|
150
|
200
|
250
|
300
|
|
允許壓差
|
≤公稱壓力
|
0.4
|
3.4
|
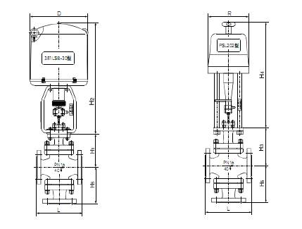
進口電子式電動三通調節閥結構尺寸圖

進口電子式電動三通調節閥常、中溫型外形尺寸表
|
公稱通徑
|
L
|
H1
|
H
|
D
|
重量(Kg)
|
|
PN(MPa)
|
常溫
|
中溫
|
PN1.6
MPa
|
PN4.0,6.4MPa
|
|
1.6
|
4.0
|
6.4
|
常溫
|
中溫
|
|
25
|
185
|
190
|
200
|
120
|
680
|
830
|
225
|
26
|
30
|
33
|
|
32
|
200
|
210
|
210
|
120
|
683
|
834
|
225
|
28
|
31
|
34
|
|
40
|
220
|
230
|
235
|
140
|
758
|
909
|
225
|
38
|
47
|
51
|
|
50
|
250
|
255
|
265
|
145
|
768
|
919
|
225
|
41
|
51
|
55
|
|
65
|
275
|
285
|
295
|
190
|
989
|
1152
|
225
|
61
|
80
|
88
|
|
80
|
300
|
310
|
320
|
210
|
1022
|
1185
|
225
|
77
|
100
|
110
|
|
100
|
350
|
355
|
370
|
220
|
1044
|
1207
|
225
|
96
|
120
|
131
|
|
125
|
410
|
425
|
440
|
270
|
1336
|
1548
|
310
|
160
|
195
|
244
|
|
150
|
450
|
460
|
475
|
280
|
1358
|
1570
|
310
|
205
|
249
|
269
|
|
200
|
500
|
560
|
570
|
320
|
1436
|
1648
|
310
|
275
|
402
|
435
|
|
250
|
640
|
660
|
670
|
450
|
1707
|
1947
|
310
|
485
|
605
|
665
|
|
300
|
720
|
735
|
750
|
465
|
1767
|
2008
|
310
|
635
|
755
|
825
|
進口電子式電動三通調節閥低溫型外形尺寸表
|
公稱通徑
|
D
|
DN
|
H1
|
-100℃
|
-200℃
|
-250℃
|
重量
(Kg)
|
|
H 2
|
H
|
H 2
|
H
|
H 2
|
H
|
|
25
|
225
|
270
|
290
|
102
|
500
|
1112
|
700
|
1312
|
900
|
1512
|
41
|
|
32
|
225
|
300
|
310
|
105
|
500
|
1118
|
700
|
1318
|
900
|
1518
|
44
|
|
40
|
225
|
310
|
340
|
127
|
500
|
1190
|
700
|
1390
|
900
|
1590
|
62
|
|
50
|
225
|
340
|
370
|
132
|
500
|
1200
|
700
|
1400
|
900
|
1600
|
67
|
|
65
|
225
|
380
|
410
|
171
|
600
|
1463
|
800
|
1663
|
1000
|
1863
|
100
|
|
80
|
225
|
410
|
440
|
188
|
600
|
1489
|
800
|
1689
|
1000
|
1889
|
112
|
|
100
|
225
|
470
|
500
|
200
|
600
|
1505
|
800
|
1705
|
1000
|
1905
|
143
|
|
125
|
310
|
550
|
590
|
250
|
700
|
1842
|
900
|
2042
|
1100
|
2242
|
229
|
|
150
|
310
|
600
|
640
|
260
|
700
|
1852
|
900
|
2052
|
1100
|
2252
|
296
|
|
200
|
310
|
720
|
760
|
300
|
700
|
1892
|
900
|
2092
|
1100
|
2292
|
471
|